|
|

Forside
Nyt i klubben
Vort anlæg
Slangerupbanen
Kystbanen
Klubbens historie
Bestyrelsen
Vedtægter/regler
Klubbladet
Links
|
|

Hans-Henrik, Henning og giveren, Torben Pihler, med den flotte gave. Foto: Jacqueline Jensen
Tak for oplevelser fra en svunden tid
Af Hans-Henrik Landsvig
-Tak for, at modelbaneklubben både leverer hyggelige kørende oplevelser fra en svunden tid med KSB og interesserer sig for lokalhistorien, dokumenterer den, sagde den første gavegiver ved den allerførste gaveoverrækkelse i anledning af vor klubs 50års jubilæum senere i år.
Torben Pihler er vokset op mellem Skovbrynet og Hareskov. Han flyttede senere til Værløse, og nu er det Farum, der er aktuel. Han er aktiv i Industribaneklubben, som driver en interessant strækning med smalspor ved Hedehusene.
Sammen med sin far var han med det sidste dieseltog mod Farum i 1977 og med det første S-tog tilbage.
| -Et trist motiv fra 1973, foreviget og genialt indrammet af fotografen, Erik V. Pedersen. Et godt billede, som glimrende beskriver, hvilken (mangel på) vedligeholdelse, de dødsdømte stationer og holdepladser opnåede i deres sidste mange leveår, sagde Torben Pihler. |
 |
-Jeg har fulgt udviklingen, de store infrastrukturbeslutninger og påvirkningen på lokalområdet. Fra sommerhusidyl på landet med enkeltspor for de pålidelige, brummende MO+CL+CLSere over S-tog med rygerkupéer og smældende arbejdsrelæer til timinuttersdrift med graffitioversmurte SA-vognsæt forbi identiske kønsløse holdepladser.
Men! Vores jernbanebro [ved Fiskebæk] står uforandret solidt, robust, historisk. En påmindelse om, at store - gennemtænkte - beslutninger, god planlægning og god kvalitet betaler sig, sagde han.
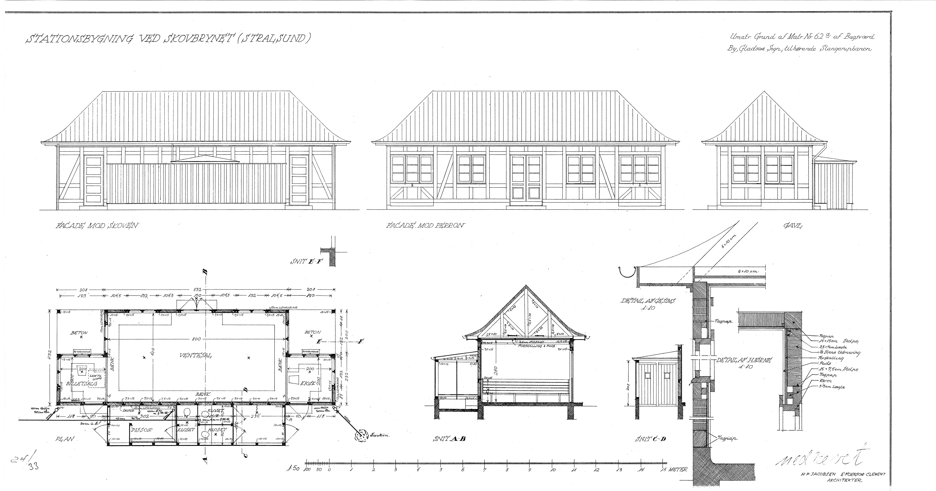
Det smukke emaljeskilt fra trinbrættet ved Skovbrynet lykkedes det ham at redde fra skrotbunkerne, inden alle de gamle minder var blevet bulldozet bort i 1977. Nu skal det så pryde vort klublokale - inklusive de ar, som stenkastende skarnsknægte har påført det.
Og med gaven fulgte så et ønske: Torben Pihler ser meget gerne, at klubben bygger et lille modul med Skovbrynet trinbræt omkring 1962. Det skal naturligvis være med bindingsværkshuset, bommene for Frederiksborgvej og iskiosken, hvor han og hans familie på udvalgte dage kunne få en isbåd.
Skæbnen vil, at den originale tegning fra 1930 er bevaret på Danmarks Jernbanemuseum. Modelbyggere kan klikke på billedet for at få architekterne H.P. Jacobsen og E. Foersom-Clements værk i mere praktisk størrelse.
Skovbrynet gennem tiderne
Holdestedet Skovbrynet åbnede den 1.oktober 1930 - altså godt 24 år efter åbningen af jernbanen og kort efter, at kommunerne havde overtaget det private jernbaneselskab.
Der var da heller ikke de store billetindtægter fra den dengang meget beskedne bebyggelse i nabolaget, men kommunalpolitikerne så det påtrængende behov for en markant stigning i banens serviceniveau, og stedet blev efterhånden flittigt benyttet af gæster både til skoven og til restauranten af samme navn som holdepladsen.
At politikerne traf den rette beslutning kan bevidnes af denne artikels forfatter, som så sent som i slutningen af 60erne jævnligt tog toget fra Stengården lørdag aften for at frekventere et senere oprettet diskotek, som må have været en god indtægtskilde for restaurant Skovbrynet.
Her i 2026 er der kommunal skovbørnehave i stedet for diskotek.
| Dejlig velegnet bygning. Det mener parret i krogen ved det sjældent åbne billetkontor åbenbart også. Foto: Gladsaxe Byarkiv.
|
Den oprindelige stationsbygning var en nydelig bindingsværksbygning med grå mursten. Der var billetkontor - dog kun åbent på store trafikdage - ventesal og kiosk. Billetsalget lukkede i 1955, og bygningen blev brutalt smadret senest i 1964 til fordel for to motorvejsbroer og et dobbeltspor. I første omgang blev den erstattet af et præfabrikeret skur.
2. april 1939. Overskæringen lå præcis ved den nuværende gangtunnel. Der skete en del alvorlige ulykker på stedet, men der kom først halvbomme i 1962. Bemærk det store skilt, som peger mod holdepladsen. Foto: Danmarks Jernbanemuseum. |
 |
Nærstudier af Krak/Eniros geniale kombination af nutidige luftfotos med tilsvarende fotos fra 1954 afslører, at bygningen lå 125 meter fra jernbaneoverskæringen for Frederiksborgvej og præcis ved den tredje køreledningsmast i det nordgående spor, hvis man tæller fra gangtunnellen i forlængelse af Skovdiget.
Det nuværende sceneri er uforskammet grimt, men alt efter alder kan man naturligvis søge tilflugt i minderne fra enten diskoteket eller skovbørnehaven. Den bygning er der da endnu.
Bent Schulze elskede rangering. Derfor de mange industrisidespor.
Skovtur til et land ved navn Somewhere
Af Hans-Henrik Landsvig Fotos: Jacqueline Jensen
Bemærk: For at I bedre kan se de flotte detaljer på anlægget, er det i denne artikel muligt at klikke på billederne for at se dem i en større udgave.
I 1956 flyttede den danske læge Bent Schultze til Ljungby i Sverige og begyndte at bygge en stor modelbane.
På FMJK-skovturen 2025 havde deltagerne fornøjelsen både af at af at se banen og af en fantastisk svensk gæstfrihed fra den klub, som driver banen i dag. En stor tak til TågCentralens medlemmer skal lyde herfra.
| Vi blev flot beværtet i udstillingens café. |
 |
Det tog Schulze 30 år at bygge en bane på 60 kvadratmeter i to kælderrum. Alt er tydeligvis planlagt meget omhyggeligt, så der er mulighed for realistisk kørsel og megen rangering i et fantasi-land, han kaldte Somewhere.
Flot er det, og så var hele anlægget oven i købet tæt på at ende på lossepladsen, efter at Bent Schulze og hans børn havde foræret anlægget til Ljungby Kommune i 1996, da Schultzes helbred var begyndt at svigte.
> |
Det eneste hus med et virkeligt forbillede er modellen af Bent Schulzes eget hus. |
Betingelsen var, at anlægget skulle fremvises offentligt med jævne mellemrum, men folkene, som skulle flytte det fra kælderen til det tidligere pakhus på den lokale jernbanestation, savede bordpladerne i stykker, ødelagde mange bygninger og klippede kablerne over - uden dokumentation!!
Herefter fik resterne lov til at stå og forfalde under nogle presenninger.
| Et godstog reklamerer for TågCentralens sponsorer. |
 |
 |
Den største af banegårdene i Somewhere. |
| Ja, flot er det. |
< |
 |
Der er mange klipper i Sverige - og på anlægget. |
| Bjergkammen i baggrunden glider smukt over i vægmaleriet - og så skjuler den en opstillingsbanegård... |
 |
En gruppe frivillige greb ind og brugte 15.000 timer på at genskabe Schulzes projekt i en gammel fabriksbygning. Han nåede selv at se genopbygningen skride frem, inden han døde i 2002, men først i 2012 kunne anlægget genindvies.
Her kunne skovturen have sluttet med stor succes, men vi var et par stykker, der snappede efter vejret, da vore værter åbnede en branddør ind til et langt større areal, hvor de er ved at opbygge et endnu større modelbaneanlæg med forbillede i de smalsporede jernbanestrækninger omkring Ljungby.
 |
Smålandsk idyl på det smalsporanlæg, TågCentralens medlemmer er ved at bygge. |
| Der er rigtigt vand i elven, som driver vandmøllen. |
 |
 |
Brandbilen er blevet forsinket efter et voldsomt møde med en elg. |
Og så er der i øvrigt en velvoksen udstilling af alskens legetøj med tinsoldater, dukkehuse, metalbyggesæt, Lego og meget andet godt.
Et besøg i Ljungby kan varmt anbefales. Her er et link til herlighederne: https://minivarlden.se/
Tilbage fra sommerferie - nu sker der noget i Helsingør og Farum
Og Kronborg luder ved Sjællands port...
| Utroligt, hvad en laserskærer kan gøre ved et fortov. |
|
Efter en god sommerferie er vi tilbage i klubben, og arbejdet omkring Helsingør-området er allerede i fuld gang igen. Det er altid dejligt at vende tilbage og mærke energien, når vi sammen får projektet til at tage nye skridt fremad.
Man kan nu tydeligt se, hvordan Helsingør færgeleje begynder at tage form. Det store område, som mange af os har set frem til, er ved at ligne noget, og lige inden ferien nåede vi rigtig langt med at få selve færgeterminalen til at ligne det endelige resultat. Det er imponerende at se, hvor meget liv og realisme der kommer, når flere detaljer falder på plads.
Samtidig er John gået i gang med at male baggrunden. Det giver straks mere dybde til hele anlægget, og det bliver spændende at se, hvordan hans arbejde binder scenen sammen og skaber en troværdig kulisse for stationen, færgelejet og byen.
Morten har i mellemtiden haft gang i laserskæreren og er begyndt at lave forpladsen til Helsingør station. Endnu en gang bliver vi alle imponeret over de resultater, vi får ud af maskinen. Den giver os mulighed for at skabe præcise og detaljerede dele, som virkelig løfter helheden og gør vores modeller unikke.
Henning er også godt i gang - dog i en helt anden ende af anlægget - hvor han arbejder på at få Farum by færdig. Her bliver der også kælet for detaljerne, så byen kan fremstå som et flot og troværdigt miljø. Imens hygger Finn sig med at bygge flere huse til Helsingør by, så området omkring posthuset og stationen stille og roligt vokser frem og får endnu mere karakter.
Alt i alt er vi kommet godt i gang efter ferien, og det lover godt for den kommende tid. Med byen, posthuset, stationen, færgelejet og nu også Farum i rivende udvikling er det tydeligt, at vi stille og roligt nærmer os et flot og helstøbt anlæg, hvor både store og små detaljer spiller sammen.
Vi glæder os til at fortsætte arbejdet og vise de næste skridt i projektet, når vi igen mødes i klubben!
Bøger og tidsskrifter er nu ordnet og sorteret. Fotos: Hans-Henrik Landsvig |
 |
Velkommen i biblioteket
Vor klub har fået et nyt bibliotek, efter at en ganske fin samling bøger, tidsskrifter og arkivalier i lange tider blot har været dynget hen bag en dør.
Nu er rummet bag tjenestekupeen blevet til et bibliotek, hvor alt omhyggeligt er sorteret, som det ses på billederne. Modelbanebøgerne er blevet samlet i rummet ved indgangen til anlægget.
Sagen blev drøftet på 2025-generalforsamlingen, hvor der var blev fremsat ønsker om at begrænse beholdningerne af udenlandsk materiale. Det har medført, at en større samling af tidsskriftet Miniaturbahnen (MIBA) havnede i en container bag Bytorvet, fordi ingen liebhavere meldte sig.
Desuden viste bogsamlingen sig at indeholde et stort antal dubletter, hvoraf mange nu har fået sig et nyt hjem. De tilbageværende vil blive anbragt i en bakke, hvor medlemmerne frit vil kunne forsyne sig.
Der bliver også mulighed for at låne bøger med hjem.
Jesper og Hans-Henrik, som står bag oprydningen, ser naturligvis gerne, at vi ikke igen kommer til at stå med en rodebunke.
Derfor er der udarbejdet et sæt retningslinjer, som kan læses på siden med vore love. De to herrer håber, at alle vil respektere de tre kasser til henholdsvis aflevering af nyt bog- og arkivmateriale, til afleveringen af udlånte bøger og til fri afhentning af dubletter.
God fornøjelse i vor ny klubfacilitet.

Ny gader opstår i langs stationen i Helsingør. Foto Morten Bonnichsen
Banegårdskvarteret er ved at opstå
Selv om vi stadig arbejder på de sidste detaljer ved både posthuset og stationen i Helsingør, er vi allerede i fuld gang med næste spændende etape: at opbygge byen omkring.
Det er især Finn, der har taget teten og er gået i gang med stor entusiasme og sans for detaljerne.
Arbejdet handler i første omgang om at få lagt de overordnede linjer for området - hvor gaderne skal løbe, hvor bygningerne skal stå, og hvordan det hele skal hænge sammen, så det bliver både realistisk og harmonisk. De første huse er allerede godt i gang med at blive bygget og samlet, og det er en fornøjelse at se, hvordan området langsomt tager form omkring posthuset.
Det giver en helt ny dimension til anlægget, at vi nu begynder at skabe et helt bymiljø. Gader, fortove og små pladser er under planlægning, og det hele bliver nøje tilpasset, så stemningen omkring Helsingør station bliver så troværdig som muligt.
Samtidig mangler vi stadig at få gjort det sidste færdigt på posthuset og stationen. Lyset skal installeres, og der er små detaljer, der skal finpudses, før bygningerne for alvor er klar til at indgå som en naturlig del af byen.
Det er fantastisk at se, hvordan projektet udvikler sig uge for uge. Med Finns store indsats og resten af holdets hjælp er vi godt på vej mod et imponerende resultat, der vil løfte hele anlægget.
Vi glæder os til at vise jer endnu flere fremskridt i de kommende måneder - og til den dag, hvor hele byen omkring Helsingør station står færdig og klar til at byde togene velkommen!
Byggeboom i Farum
|
Der arbejdes på at få udbygget Farums bymidte.
Hovedgaden 33 - til venstre i billedet øverst - har i nyere tid rummet bl.a. kiosk og ejendomsmægler, foruden en frisørsalon i gavlen. Ifølge telefonbogen for Farum 1931 hed stedet Kaffehuset og forhandlede: Kaffe, Te, Vin Cigarer, Cigaretter, Pibetobak, Spirituosa og Viktualievarer, som der stod i telefonbogen.
Farum Konditori på billedet til højre er også færdigt. Her er I dag Farum Kro.
|
|
Helsingør Station tager form
Helsingør Station med posthuset til venstre. Fotos: Morten Bonnichsen

Og nu efter at murstenspapiret er kommet på.
Vi er nået et stort skridt videre med vores model af posthuset ved Helsingør station, og det begynder virkelig at tage form!
Det har været en spændende proces, hvor vi har kombineret forskellige teknikker for at opnå det bedste resultat. Efter mange timers arbejde har vi nu skåret alle delene ud på vores laserskæremaskine, hvilket har sikret en præcis og detaljeret model, der danner grundlaget for det videre arbejde. Vinduerne er også blevet printet på 3D-printeren, hvilket tilføjer ekstra detaljer og gør bygningen endnu mere realistisk.
Vinduerne monteres.
Med alle delene klar kunne vi gå i gang med selve samlearbejdet. Her har vi omhyggeligt samlet de forskellige sektioner og sikret, at bygningen får den helt rigtige form. Det er altid en spændende fase, hvor man for alvor begynder at se modellen tage form. Når delene samles, og bygningen får sin struktur, kan man virkelig begynde at fornemme, hvordan det færdige resultat kommer til at se ud.
Næste vigtige skridt har været at lime murstenspapir på. Dette er en afgørende detalje, da det giver bygningen den karakteristiske murstensstruktur og tilfører dybde og realisme til modellen. Det kan virke som en lille ting, men det gør en kæmpe forskel i det samlede udtryk.
Murene rejses.
Nu står posthuset med en flot
overflade, der ligner den rigtige bygning endnu mere.
Men vi er ikke færdige endnu! Det næste, vi skal i gang med, er at installere lys i bygningen. Det er en detalje, der virkelig kan gøre en model mere levende. Når lyset tændes, vil de små detaljer træde endnu tydeligere frem, og posthuset vil få en hyggelig og realistisk stemning - især i aftenbelysning.
Copyright © til disse sider: Farum Modeljernbane Klub af 1976 Formand: Henning Hansen Tlf: 40 76 38 55 mail@fmjk1976.dk CVR: 29673837
|
|